TEACHERS
GALLERY
PRICING
SIGN IN
TRY ZURU
GET STARTED
Loop
Audio
Interval:
5s
10s
15s
20s
60s
Play
1 of 10
Slide Notes
Download
Go Live
New! Free Haiku Deck for PowerPoint Add-In
LOFT
Share
Copy
Download
0
189
Published on Nov 18, 2015
No Description
View Outline
MORE DECKS TO EXPLORE
PRESENTATION OUTLINE
1.
LOFT PARA UN ESCULTOR
Rodrigo Macías gaxiola
Taller integral |
Cliente : Sergio Bustamante
Photo by
betta design
2.
NECESIDADES DEL CLIENTE
Atraído por las artes plásticas y artesanías
Necesita una area de pintura y diseño
Un espacio aislado para el restirador
Área para guardar madera, plata y herramientas
Bodega para guardar esculturas y las necesidades cotidianas
3.
DATOS DEL CLIENTE
4.
ANÁLISIS ARQUITECTÓNICO
Ergonomia en los muebles
El tipo de diseño será simple y minimalista
Colores suaves para la tranquilidad (blanco ,azul y cafe)
5.
Untitled Slide
6.
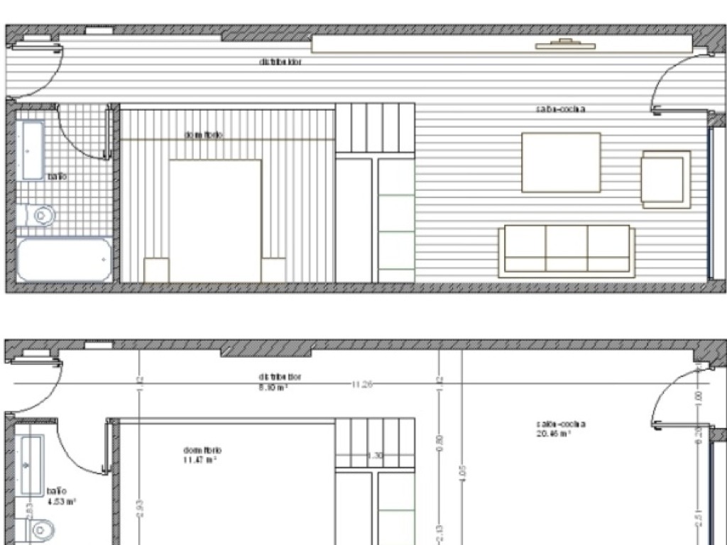
Untitled Slide
7.
Untitled Slide
8.
PATRONES DE DISEÑO Y PERSPECTIVA
9.
Untitled Slide
10.
Untitled Slide
Friend of Haiku Deck
×
Error!